TSR

Tour RTS à Genève

dl-a, designlab-architecture / Inès Lamunière et Patrick Devanthéry

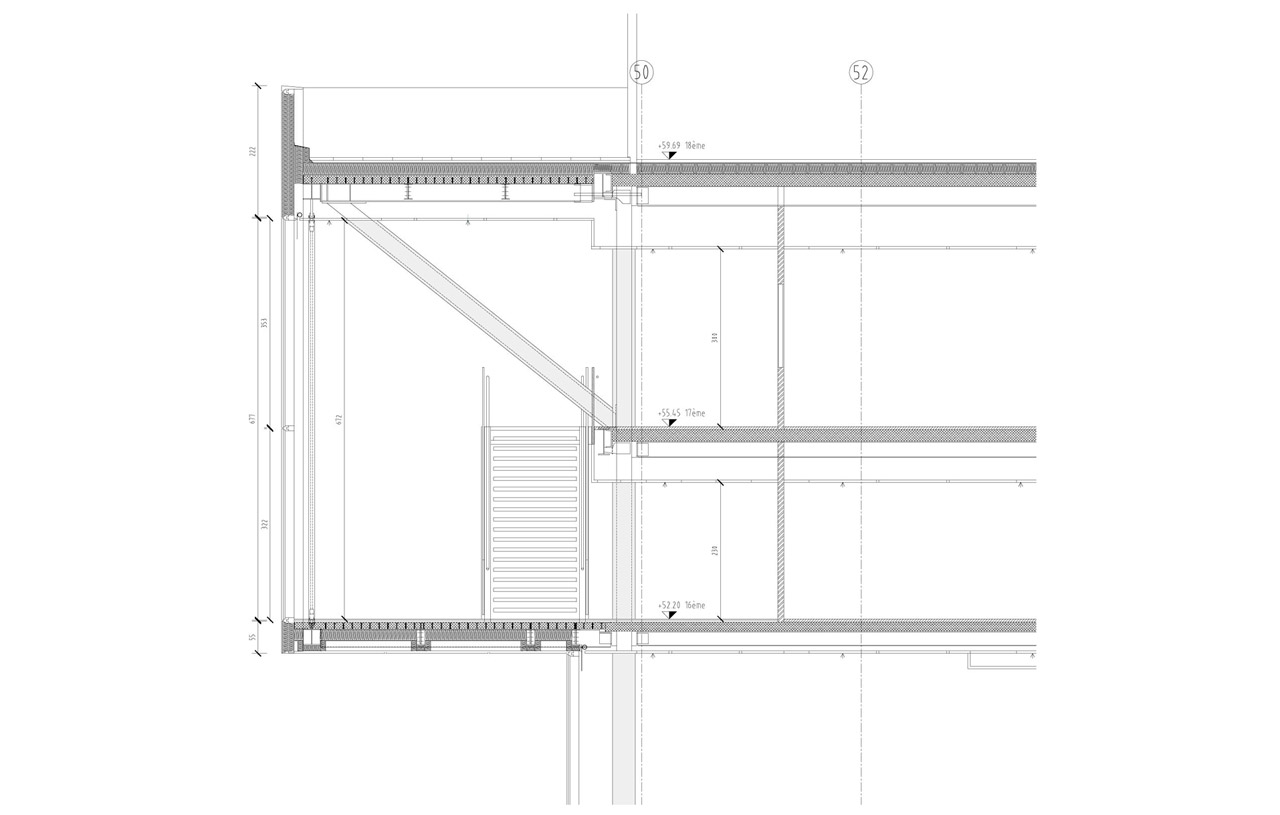
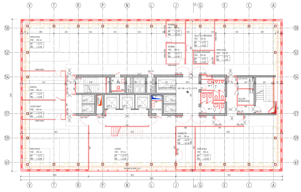
L’ancienne tour érigée par Arthur Bugna en 1973 était frappée d’obsolescence. Le projet pour la nouvelle tour a consisté en une mise à nu de l’ossature béton et à une redéfinition complète de son architecture. Il s’est agi de concevoir une organisation spatiale et une image contemporaine qui répondent au changement de culture de l’entreprise de service public qu’est la Radio Télévision Suisse (RTS).  Les aménagements des espaces de travail des 800 collaborateurs sont réorganisés sur de larges plateaux parfois ouverts sur des espaces sur double ou triple hauteur. Ces atriums permettent la rencontre informelle d’équipes tout comme l’enregistrement d’émissions. Ouverts sur l’Arve et le quartier des Vernets, ils se transforment, le soir en vitrine d’une activité toujours palpitante et à l’écoute du monde. Du côté ville et paysage lémanique, c’est un espace en porte à faux, au sommet de la tour qui couronne l’édifice. Dévolu aux réunions plus importantes et parfois festives, la grande fenêtre qui le caractérise donne sur le panorama et le met en toile de fond des enregistrements d’interviews réalisés en prime time. Enfin, la façade est composée sur une trame de 155cm dont le rythme géométrique se joue d’une pixellisation et d’effets optiques particuliers. Le volume de la tour avec ses panneaux de verre et d’acier poli miroir reflète son environnement et le climat qui l’entoure, les nuages, la pluie, le bleu du ciel. Une image toujours changeante pour une tour emblématique dans le skyline genevois.

Tour RTS à Genève

Maître de l’Ouvrage: SRG SSR Idée suisse
Coût: 44'000'000 CHF TTC
Nature du projet: Nouveau bâtiment
Procédure: 1er prix, concours sur invitation
Projet: 2005
Réalisation: 2012
Mandat: Phase SIA 55%